Friedhöfe
im Bereich Freiraumplanung
2025
Friedhof Heitersheim
2024 - 2025
Stadt Heitersheim
Friedhof Bötzingen
2023 - 2025
Gemeinde Bötzingen
2023
Friedhof Buggingen-Seefelden
2022 - 2023
Gemeinde Buggingen
2022
Friedhof Buggingen
2. Bauabschnitt
2021 - 2022
Gemeinde Buggingen
2021
Zentralfriedhof Müllheim
2021
Gemeinde Müllheim
Zentralfriedhof Müllheim Urnenfeld
2020 - 2021
Gemeinde Müllheim
Gestaltungs‐ und Entwicklungskonzept Friedhof Feldkirch
2019 - 2020
Gemeinde Hartheim-Feldkirch
2020
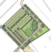
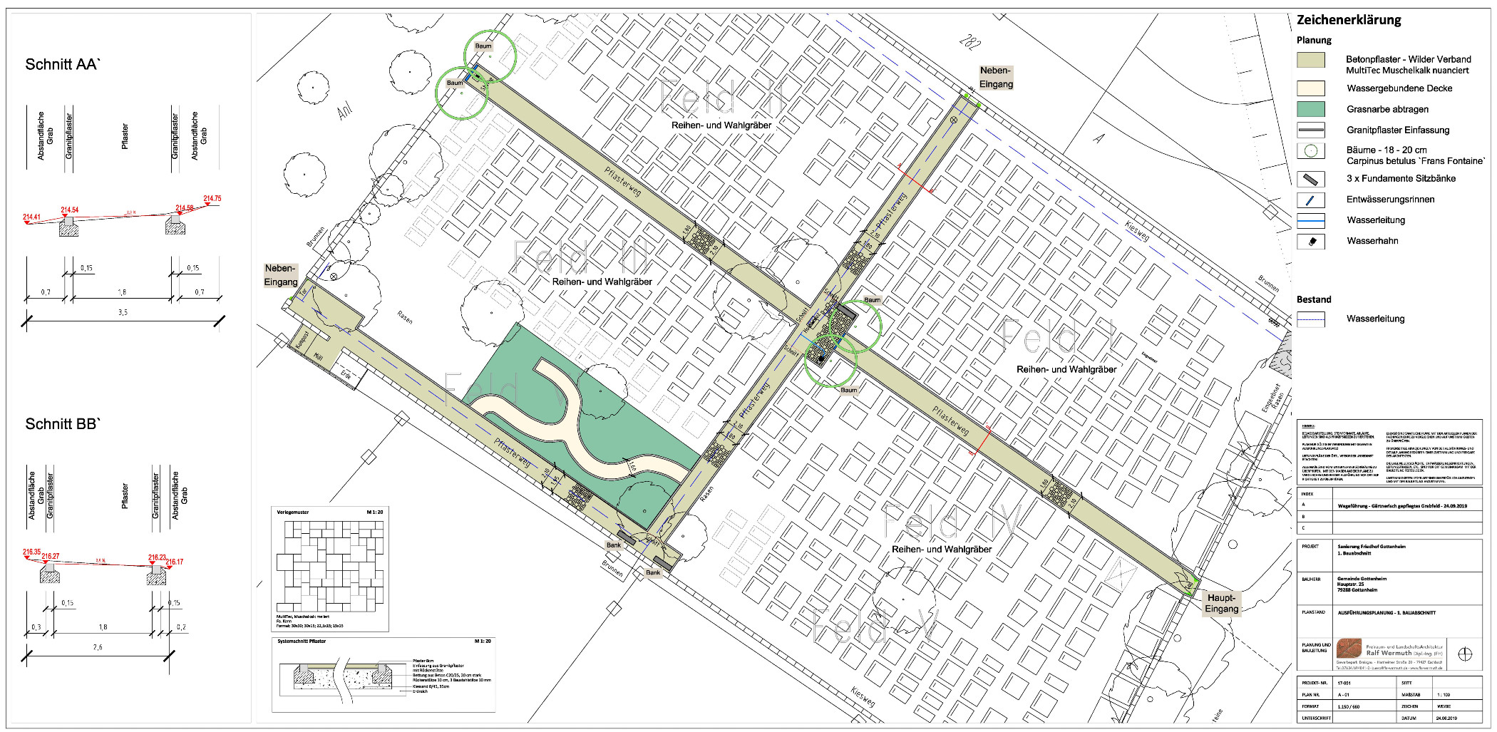
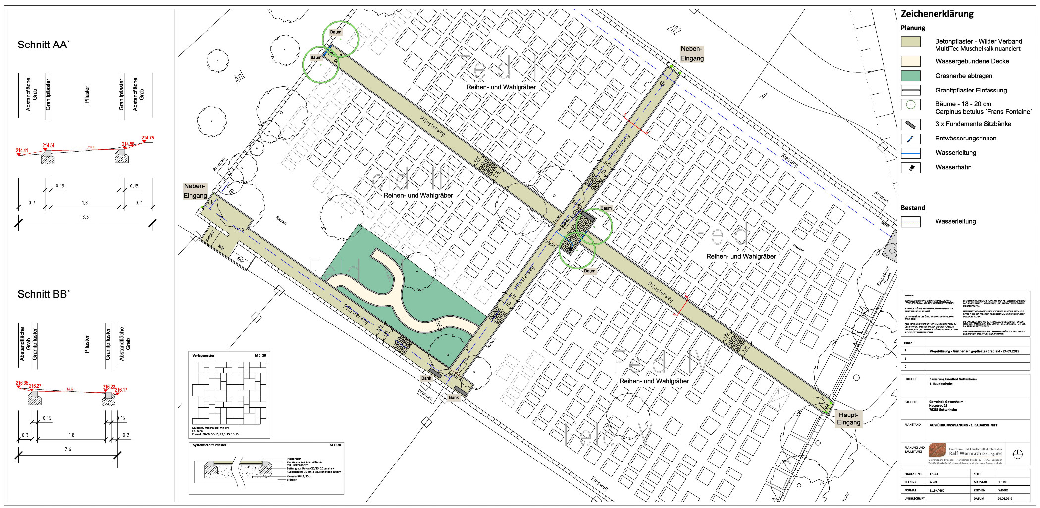
Friedhof Gottenheim
2019 - 2020
Gemeinde Gottenheim
2018
Sanierung Friedhof Schönau
1. + 2. Bauabschnitt
2017 - 2018
Gemeinde Schönau
2017
2016
Erweiterung Sanierung Friedhof St. Peter
2015 - 2016
Gemeinde St. Peter